Neubau Bürgerhaus mit Feuerwehr, Rohrbach
| Projektdaten |
| Standort Dr. Horst Schmidt Straße 2, 64372 Ober-Ramstadt |
| Bauherr Magistrat der Stadt Ober-Ramstadt |
| Leistungsphasen 1 – 8 |
| Zeitraum der Bearbeitung 2021 – 2024 |
| BGF 1.563 qm |
| Projektteam Alexander Heinigk, Christoph Kelber, Andreas Dech, Martynas Degutis (Lengfeld & Wilisch), Jennifer Hofmann und Julia Kunt (grüningerarchitekten) |
| Planungspartner grüningerarchitekten BDA, LS2 Landschaftsarchitekten und Beratender Ingenieur Schelhorn Lukowski Schnabel |
| Auszeichnung Tag der Architektur 2025 |



Der Neubau für das Bürgerhaus und die Freiwillige Feuerwehr liegt in der kleinen Gemeinde Rohrbach umgeben von einer kleinteiligen Ein- und Mehrfamilienhausstruktur und ersetzt das alte Bürgerhaus auf dem gleichen Grundstück. Mit einer hell geklinkerten Fassade, einer klaren horizontalen Gliederung und großzügigen Verglasungen zeigt sich der Neubau als repräsentatives und modernes Aushängeschild für Rohrbach.
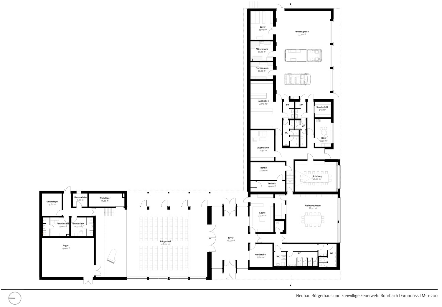
Der L-förmige Baukörper vereint gestalterisch und funktional 2 unterschiedliche Nutzungen: die Feuerwehr mit drei Stellplätzen und ein Bürgerhaus mit zwei unterschiedlich dimensionierten Sälen und großzügigem Foyer. Die Nutzungen sind klar voneinander getrennt, können aber auch zusammengeschaltet werden.
Das Bürgerhaus liegt im straßenabgewandten Flügel und wird über das großzügige Foyer sowohl vom Platz im Osten als auch über den Parkplatz im Westen des Gebäudes erschlossen. Von hier aus sind die beiden Säle sowie Küche und Garderobe zugänglich, sodass die Säle unabhängig voneinander genutzt werden können und das Foyer mit Sanitärräumen und Küche bei Festplatznutzung unabhängig zur Verfügung steht.
Der große Bürgersaal öffnet sich mit einer großzügigen Fensterfront zum Platz hin und lässt sich gemeinsam mit diesem nutzen. Der kleinere Saal mit dienenden Funktionen ist zudem für multifunktionale Nutzungen ausgelegt. Das Bürgerhaus bietet somit vielfältige Nutzungsmöglichkeiten für Veranstaltungen, Versammlungen und kulturelle Ereignisse.

Das Feuerwehrhaus befindet sich im straßenseitigen Gebäudeteil, sodass die Ein- und Ausfahrt für die PKW-Parkplätze und die Alarmausfahrt direkt auf die Hauptstraße münden. Die Feuerwehrwache besteht aus einer Fahrzeughalle mit drei Stellplätzen, einem Umkleide- und Duschbereich mit Schwarz-Weiß-Trennung, Lagerflächen, einem Verwaltungsbüro, Schulungs- und Jugendraum sowie Trocken- und Waschraum.
Der L-förmige Baukörper auf der Südwestseite des Grundstücks lässt einen attraktiven Platz mit großem Spielplatz entstehen, der unabhängig von Veranstaltungen hohe Aufenthaltsqualitäten bietet und zu einem attraktiven, lebendigen und zentrumsbildenden Treffpunkt für Rohrbach wird. Der neue Platz kann auch als Festplatz genutzt werden.




Das Gebäude ist in Massivbauweise mit Gründach und partieller PV-Anlage errichtet. Die Träger in der Fahrzeughalle und dem Bürgersaal sind als Brettschichtholzträger ausgebildet, zwischen denen sich im Bürgersaal akustisch wirksame Holzlamellenplatten befinden. In der Fahrzeughalle bleibt das Trapezblech sichtbar. Beheizt wird der Bürgersaal mit Deckenstrahlungsheizkörpern, während die übrigen Räume eine Fußbodenheizung besitzen.
Der Neubau wurde als Effizienzhaus 40 realisiert. Eine Wärmepumpe und Erdkollektoren unter der Platzfläche sorgen für Wärme- und Kälteversorgung, während Photovoltaikanlagen auf den Dachflächen umweltfreundlichen Strom erzeugen. Die Regenwasserversickerung auf dem Grundstück ergänzt das nachhaltige Gesamtkonzept.
Verwandte Projekte:



